Kokiskashop.cz

Terasové prkno G21 2,5*14*300cm, Incana WPC

Terasové prkno G21 v barvě Incana z WPC materiálu je součástí komplexního podlahového...

Zobrazit podrobnější popis

Produkt je aktuálně neprodejný

Dostupnost: neprodejný

Terasové prkno G21 2,5*14*300cm, Incana WPC

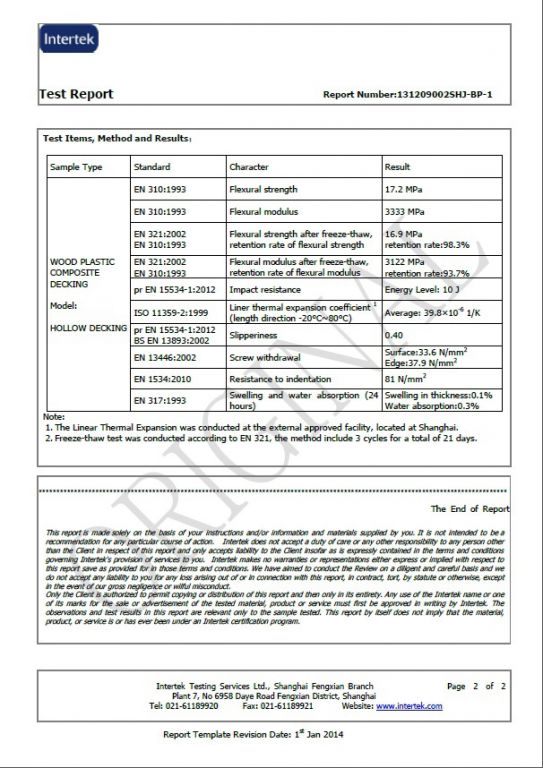
Terasové prkno G21 v barvě Incana z WPC materiálu je součástí komplexního podlahového systému G21. Ten je praktickým řešením na exteriérové podlahové krytiny. Splňuje nejen vysoké kvalitativní nároky, ale je i cenově výhodný. 

Materiál WPC (Wood plastic components)
 je směs tvořená z 60 % z dřevitých vláken a ze 40 % z plastu. S pomocí vlivu tlaku a teploty (extrudace) vzniká odolný a bezúdržbový materiál, který je praktický a po všech stránkách vysoce užitkový. 

Vlastnosti tohoto materiálu dosahují kvalit prken z exotických dřevin a zároveň jsou ale výrazně cenově dostupnější. Podlahy a terasy položené s použitím systému G21 tedy navenek vypadají jako ze dřeva, ale na rozdíl od dřevěných krytin u nich není zapotřebí další údržba nebo nátěry. Oproti klasickému plastu mají zase vysokou stálobarevnost a jsou odolnější vůči teplotním výkyvům.

WPC materiál 
je díky svým vlastnostem vhodný pro použití na místech, kde dochází k působení všech běžných vlivů venkovního prostředí jako je např. vlhko, sluneční záření, déšť, vítr, mráz, atd. Využijete ho tedy na venkovních terasách, plochách kolem bazénu, na balkoně, apod. 

Rozměr terasového prkna (tloušťka x šířka x délka):
 2,5 x 14 x 300 cm 

Pro vybudování podlahy budete k terasovým prknům G21 dále potřebovat následující prvky, které naleznete v naší nabídce:


1) Nosník terasových prken
 – pokládá se napříč pod terasová prkna s roztečí 35 cm. Doporučená spotřeba: 3 m nosníku terasových prken na 1 m2 terasového prkna. 

2) Příchytka terasového prkna k nosníku
 – používá se v každém bodu, kde dojde ke křížení nosníku s terasovým prknem. Slouží zároveň jako distanční prvek pro vytvoření dilatační mezery mezi jednotlivými terasovými prkny. Doporučená spotřeba: 22 ks na 1m2 terasového prkna. 

3) Příchytka nosníku terasových prken k podkladu
 – příchytku je potřeba použít na každých 40 cm délky nosníku. Doporučená spotřeba: 8 ks na 1m2 terasového prkna. 

4) Zakončovací lišta
 – používá se na zakrytí pohledových hran položené podlahy či terasy. Spotřeba je individuální podle tvaru plochy a velikosti viditelných hran. 

Podlahový systém G21 má několik nesporných výhod oproti jiným podlahovým krytinám: 


Bezúdržbovost
 – materiál není třeba udržovat nebo ošetřovat pomocí nejrůznějších nátěrů a čistí se jednoduše pomocí vody. 

Stálost
 – WPC materiál je probarven v celé hmotě, tudíž nedochází v průběhu času ke změnám jeho barvy. Na rozdíl od dřevěných materiálů nemá různé pohledové vady jako například suky, apod. 

Úspora nákladů
 – Cenová výhodnost pořizovacích nákladů na kompletní terasu či jinou podlahovou plochu a životnost přes 20 let. 

Bezpečný a protiskluzový povrch
 – Na rozdíl od dřevěných teras můžete po WPC terasách a podlahách chodit klidně i na boso, jelikož vám nebude hrozit zadření třísky. Jsou opatřeny protiskluzovou vrstvou, takže je můžete využívat u bazénů či za deště. 

Fotografie jsou ilustrativní, jedná se o fotografie z realizace.

Související články

Checklist na začátek sezóny: Co připravit na zahradě během jednoho víkendu

S prvními teplejšími dny přichází ideální čas připravit zahradu na novou sezónu. Po zimě bývá potřeba udělat několik základních kroků, aby byla zahrada opět příjemným místem pro práci i odpočinek. Dobrá zpráva je, že většinu těchto věcí zvládnete během jednoho víkendu – stačí si práci dobře naplánovat.Připravili jsme pro vás jednoduchý checklist, který vám pomůže dát zahradu rychle do... zobrazit celý článek

Jak připravit zahradu na zimu – krok za krokem

Podzim je krásné období, ale pro majitele zahrad také čas, kdy je potřeba udělat důležitou práci. Správná příprava zahrady na zimu zajistí, že rostliny, trávník i zahradní vybavení přečkají chladné měsíce bez úhony. Přinášíme praktický návod, jak postupovat krok za krokem.1. Úklid zahrady Odstraňte spadané listí a zbytky rostlin – hromady listí na trávníku mohou vést k plísním a hnilobě.... zobrazit celý článek

Ekologické zahrady 2025 – jak vytvořit zahradu přátelskou k přírodě a podle nejnovějších trendů!

Léto se pomalu chýlí ke konci a já se právě dívám na svou zahradu a přemýšlím: „Jak z ní udělat místo, které bude krásné, šetrné k přírodě a... méně práce s plevelem a zaléváním?" Pokud to máte podobně, jste na správném místě – dnes se s vámi podělím o osvědčené tipy na ekologickou zahradu v roce 2025.Co znamená „ekologická zahrada"?Pro mě je to hlavně zahrada, která žije vlastním životem,... zobrazit celý článek

Jaro na zahradě - co musíte stihnout?

Jaro na zahradě začíná už v únoru. Už v zimě je třeba se věnovat prořezávání stromů, předpěstování rostlin ve skleníku, nebo třeba údržbě zahradního nářadí. Nejvíc práce ale čeká na zahradníky, když se příroda probouzí.Péče o stromy a keřeNa přelomu března a dubna je ten pravý čas pro výsadbu nových stromů, keřů, květin, bylinek i zeleniny. Pokud se teploty drží už pár dní nad 10 stupňů, je... zobrazit celý článek

Je čas na jarní rekonstrukci

Zatímco v zimě tma a sníh leccos skryjí, jarní sluníčko může odhalit nedostatky ve vašem bydlení. Potřebovala by vaše koupelna, zahrada, nebo třeba podlahy v celém bytě důkladnou rekonstrukci? S vybavením od nás to bude hračka.Den začíná v koupelněKoupelna nejvíc prokoukne s novým umyvadlem. Pokud toužíte po originálním doplňku, který nebude mít nikdo jiný, vsaďte na umyvadlo z přírodního... zobrazit celý článek

Dokonalá zahrada

Léto je v plném proudu a my pro vás máme v kategorii Zahrada  skladem více než 2000 produktů, abyste si jej mohli na své zahradě užít opravdu naplno. Pořídíte u nás velice oblíbené grily a krby, zahradní domky, zahradní nábytek i zahradní stany či topidla. Nechybí ani zahradní dekorace, bazény a vířivky a mnoho dalších podkategorií.Za pozornost rozhodně stojí stolní zahradní topidlo... zobrazit celý článek

Mozaiky a dlaždice

Chcete si vylepšit terasu, ať už novým obložením podlahy či stěn, nebo zamýšlíte obložením dodat šmrnc některé části vašeho interiéru? Pak jste u nás správně. V kategorii Mozaiky a dlaždice totiž nabízíme několik desítek obkladových krytin a ne jen tak ledajakých.Kupříkladu Mozaika Garth z hladkých, říčních oblázků je nalepená na čtvercové síťce o rozměrech 30 x 30 cm, díky tomu vám obkládání... zobrazit celý článek

Přivítejte s námi jaro

Včera, přesně v 17:15, začalo oficiálně jaro, přivítejte ho s námi! Vedle pravidelných slevových akcí jsme pro vás tento rok připravili i novou speciální kategorii Březnové slevy, kde pořídíte nejen jarní produkty za ceny zvýhodněné až o 48%.Třeba oblíbený fóliovník Gardenay o rozměrech 190 x 200 x 450 cm s půlkruhovou konstrukcí, která mu dodává vyšší stabilitu a plachtou 140 g/m2 odolnou... zobrazit celý článek

Nejkrásnější zahrada

Kaskády záhonů podél cestičky dlážděné mozaikou z přírodních kamenů vedoucí skrze zahradní oblouk obsypaný růžovými květy na místo se stylovým zahradním nábytkem, grilem a třeba i venkovním krbem, kde můžete s přáteli i s rodinou trávit volné chvíle od jara až do podzimu, zatímco o kus dál dotváří k dokonalosti celkovou atmosféru vaší zahrady krásná kašna? Díky kategorii Zahrada, kde pro vás... zobrazit celý článek

Práce i odpočinek na zahradě

Ať už na své zahradě pracujete, okopáváte záhonky, sásíte rostlinky či stromky, odklízíte spadané listí, nebo jen tak relaxujete, neobejdete se bez věcí, které se všemi těmito činnostmi souvisejí. U nás na Kokiskashop.cz máme v kategorii Zahrada vše, na co si jen v souvislosti se zahradou vzpomenete.Pro údržbu trávníku a křovin u nás pořídíte zahradní sekačku, křovinořes, kultivátor nebo... zobrazit celý článek

Vaše jméno

Zadejte Vaše jméno

Váš email

Zadejte Váš e-mail

Vaše zpráva

Zadejte zprávu

Aktuálně

  • ikonka

    700 778 ks

    Zboží máme na skladě

  • ikonka

    588

    Zákazníků online

  • ikonka

    98%

    Spokojených zákazníků

Výhody nákupu

  • Dodání zboží do 48h
  • Výhodné ceny
  • 99% zboží skladem
  • Garance vrácení peněz
  • Zákaznická podpora

Nejhledanější kategorie

Načítání
Načítám...

Produkt byl přidán do košíku

select